SPA complex

АРхитектурный проект

  • Площадь теплого контура: 580,79
    м2
  • Площадь крылец и террас: 443,76
    м2
  • Общаяя площадь: 1024,55
    м2
  • Расположение: Свердловская обл., г. Екатеринбург, оз. Глухое
Масштаб и уникальность этого проекта поражают с первого взгляда, и это заметно в каждой детали. В состав усадьбы, расположенной недалеко от озера «Глухое» в Свердловской области, входит многофункциональный комплекс, объединяющий СПА-зону и гараж.

СПА включает множество помещений для комфортного времяпрепровождения. К особым из них относятся бассейн, массажный кабинет, парная, тренажерный зал и большая терраса с зоной для уличной купели и барбекю. На втором этаже этого же здания расположены гостевые комнаты. Уникальным элементом является полноценная обсерватория для наблюдения за звездами.

Для автомобилей гостей и хозяев предусмотрены места под большим навесом и в теплом гараже, а обслуживающий персонал проживает на втором этаже гаража.

Благодаря массивности строения и использованию выразительных элементов, таких как стропильные фермы (как и в основном доме), стиль можно обозначить как «скандинавский» с отсылками к русскому зодчеству. Для реализации проекта был выбрана технология клееного бруса.

Первый этаж СПА

Level Preview
Экспликация помещения
  • 1

    Бильярдная

    53,35
    м2
  • 2

    Бар

    12,51
    м2
  • 3

    Кухня

    21,46
    м2
  • 4

    Столовая

    14,25
    м2
  • 5

    Гостиная

    50,25
    м2
  • 6

    Парная

    14,43
    м2
  • 7

    Душевая

    10,53
    м2
  • 8

    Бассейн

    119,6
    м2
  • 9

    Тренажерный зал

    39,19
    м2
  • 10

    Прихожая

    5,92
    м2
  • 11

    Лестничный марш

    15,66
    м2
  • 12

    Тамбур

    4,07
    м2
  • 13

    Раздевалка

    6,62
    м2
  • 14

    Коридор

    3,85
    м2
  • 15

    Туалет

    3,7
    м2
  • 16

    Гардероб

    7,78
    м2
  • 17

    Техническое помещение

    7,3
    м2
  • 18

    Массажный кабинет

    23,56
    м2
  • 19

    Задняя терраса

    64,14
    м2
  • 20

    Главная терраса

    317,02
    м2

Второй этаж СПА

Level Preview
Экспликация помещения
  • 21

    Мастер-спальня

    24,05
    м2
  • 22

    Санузел

    8,51
    м2
  • 23

    Санузел

    8,51
    м2
  • 24

    Спальня

    17,16
    м2
  • 25

    Спальня

    17,19
    м2
  • 26

    Туалет

    2,78
    м2
  • 27

    Туалет

    2,78
    м2
  • 28

    Коридор

    24,68
    м2
  • 29

    Лестничный марш

    15,66
    м2
  • 30

    Балкон

    13,97
    м2
  • 31

    Балкон

    48,63
    м2
  • 32

    Постирочная

    21,88
    м2
  • 33

    Покерный зал

    23,56
    м2

Первый этаж Гаража

Level Preview
Экспликация помещения
  • 34

    Навес для авто

    100,48
    м2
  • 35

    Гараж для авто

    80,5
    м2
  • 36

    Тамбур

    3,04
    м2
  • 37

    Лестничный марш

    7,63
    м2
  • 38

    Крыльцо

    2,07
    м2
  • 39

    Гараж для спец. техники

    44,1
    м2
  • 40

    Котельная

    21,7
    м2

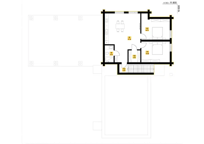
Второй этаж Гаража

Level Preview
Экспликация помещения
  • 41

    Кухня-столовая

    37,3
    м2
  • 42

    Санузел

    4,05
    м2
  • 43

    Гардероб

    3,08
    м2
  • 44

    Комната

    15,8
    м2
  • 45

    Комната

    16,71
    м2

Понравился проект?

Сделайте первый шаг к вашей мечте, свяжитесь с нашим специалистом или оставьте ваши координаты для обратной связи.

Наши Направления

Возможно вам будут интересны другие услуги нашей компании:

Дизайн интерьеров Строительство домов