KARKAS.140.2

АРхитектурный проект

  • Площадь теплого контура: 140,75
    м2
  • Площадь крылец и террас: 22,24
    м2
  • Общаяя площадь: 162,99
    м2
  • Расположение: Свердловская область, г. Березовский, КП Шишкин сад
"Барн хаус" - это стиль, который уверенно занял свое место на рынке строительства во всех направлениях. В данном случае получилось сочетать идеальные пропорции, практичность и функциональность. Фасад состоит из комбинации металла и натурального дерева, а фишкой данного дома является огромный витраж, за которым расположилась гостинная-столовая-кухня со вторым светом. Присутствует еще один интересный архитектурный элемент - Дормер - это вертикальное окно, выступающее из наклонной плоскости кровли, которое служит для увеличения пространства в нужных местах и помещениях.

Этаж 1

Экспликация помещения
  • 1

    Крыльцо

    4,14
    м2
  • 2

    Тамбур

    4,07
    м2
  • 3

    Холл

    15,86
    м2
  • 4

    Гостиная-кухня-столовая

    32,01
    м2
  • 5

    Терраса

    14,86
    м2
  • 6

    Гардероб

    2,8
    м2
  • 7

    Санузел

    4,03
    м2
  • 8

    Кабинет

    11,38
    м2
  • 9

    Котельная

    6,11
    м2
  • 10

    Крыльцо

    3,24
    м2

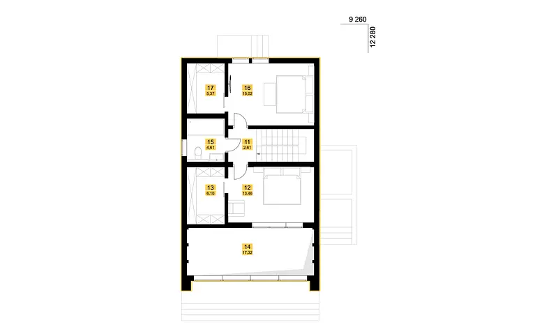
Этаж 2

Экспликация помещения
  • 11

    Коридор

    2,61
    м2
  • 12

    Спальня

    13,46
    м2
  • 13

    Гардероб

    6,1
    м2
  • 14

    Второй свет

    17,32
    м2
  • 15

    Санузел

    4,61
    м2
  • 16

    Комната

    15,02
    м2
  • 17

    Гардероб

    5,37
    м2

Понравился проект?

Сделайте первый шаг к вашей мечте, свяжитесь с нашим специалистом или оставьте ваши координаты для обратной связи.

Наши Направления

Возможно вам будут интересны другие услуги нашей компании:

Дизайн интерьеров Строительство домов