FACHWERK.175.2

АРхитектурный проект

  • Площадь теплого контура: 175,52
    м2
  • Площадь крылец и террас: 68,77
    м2
  • Общаяя площадь: 244,29
    м2
  • Расположение: Свердловская обл., г. Екатеринбург, КП "Заповедник"
Технология "Fachwerk" по истинне уникальное решение, которое может содержать в себе как стандартные, так и уникальные стилистические решения в виде панорамного остекления или сложных архитектурных элементов (форм). В данном случае стояла задача создать дом для постоянного проживания полноценной семьи, со всеми удобствами в одном комплексе. Таким образом строение разделилось на 3 зоны: 1ая - основное жилое пространство, 2ая - открытая зона террасы, зона джакузи и летняя кухня, и 3яя - банное пространство.
Крыша разбита на несколько уровней, что дает реализовать интересное решение в виде слуховых окон на 2ом этаже, которые увеличивают визуально пространство и дают много света, совместно со вторым светом между первым и вторым этажей.

Этаж 1

Экспликация помещения
  • 1

    Терраса

    52,55
    м2
  • 2

    Холл

    12,85
    м2
  • 3

    Гостиная-кухня-столовая

    38,92
    м2
  • 4

    Санузел

    4,23
    м2
  • 5

    Прихожая

    3,33
    м2
  • 6

    Гардероб

    8,03
    м2
  • 7

    Котельная

    80,3
    м2
  • 8

    Гостевая

    12,88
    м2
  • 9

    Крыльцо

    16,22
    м2
  • 10

    Комната отдыха

    17,41
    м2
  • 11

    Туалет

    2,05
    м2
  • 12

    Душевая

    5,19
    м2
  • 13

    Парная

    7,96
    м2

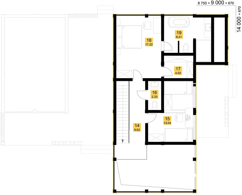
Этаж 2

Экспликация помещения
  • 14

    Коридор

    9,62
    м2
  • 15

    Детская

    13,04
    м2
  • 16

    Туалет

    2,33
    м2
  • 17

    Гардероб

    4,02
    м2
  • 18

    Мастер-спальня

    17,22
    м2
  • 19

    Санузел

    8,41
    м2

Понравился проект?

Сделайте первый шаг к вашей мечте, свяжитесь с нашим специалистом или оставьте ваши координаты для обратной связи.

Наши Направления

Возможно вам будут интересны другие услуги нашей компании:

Дизайн интерьеров Строительство домов